优点
两个独立的测量通道自由可编程的测量范围。
可能在两个点进行独立测量。
测量简单准确,维护最小
介质温度最高可达130°C,压力可达1.6兆帕。
0至100°C范围内的双自动热补偿。
可以将转换器单元放置在距离采样点较远的地方
最远可达1000米。
与外部设备的通信
电隔离电流输出0-5/4-20/0-20毫安。
RS-485端口。MODBUS RTU交换协议。
每个通道有继电器开关量输出。
IP65耐用铝壳
该设备能够可靠地防尘和防潮。
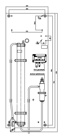
安装面板
能够将测量综合体放在一个面板上。
管是不锈钢材质。
服役寿命——至少10年
故障间隔时间 - 40,000小时


转载请注明: 北京德尔斐科技发展有限公司 » Mark-602T双通道电导率